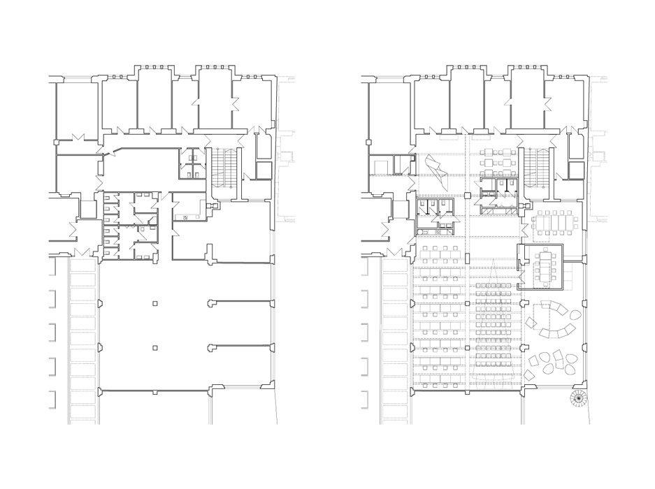
víceúčelový prostor hub

———

víceúčelový prostor hub, praha - smíchov

 

autor: pavel podlipný, štěpán beránek, zuzana beránková

užitná plocha / 520,0 m2

počet podlaží / jednopodlažní

kapacita / 150 míst

předpokládané náklady / 3 mil. kč

projekt / 2009